Wohngebäude mit 13 Wohnungen nach Passivhaus Projektierungs Paket (PHPP)
Humannweg, München

GWG - Städtische Wohnungsgesellschaft mbH

Dressler und Mayerhofer Architekten GbR, München


Baukosten netto: 1,8 Mio Euro (300-400)
BRI: 5.500 m3
BGF: 1.550 m2

LPH 6
Funktionalausschreibung


04/2010 - 07/2011

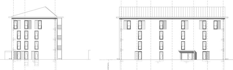
Die GWG Gemeinnützige Wohnstätten- und Siedlungsgesellschaft mbH, erstellte 2010 - 2011 im Harthof, Humannweg ein Wohngebäude als Passivhaus nach den Anforderungen des Passivhaus Projektierungs Pakets (PHPP). Der Baukörper ist als freistehendes, voll unterkellertes Gebäude mit UG, EG, 3 Obergeschossen und einem nicht ausgebauten Dach konzipiert.


Die südlichen Dachflächen erhielten eine Fotovoltaikanlage.